Projects
PORTFOLIO
PUBLICATIONS
STEVEN RANTA
Architecture Design & Fabrication
Projects
PORTFOLIO
PUBLICATIONS
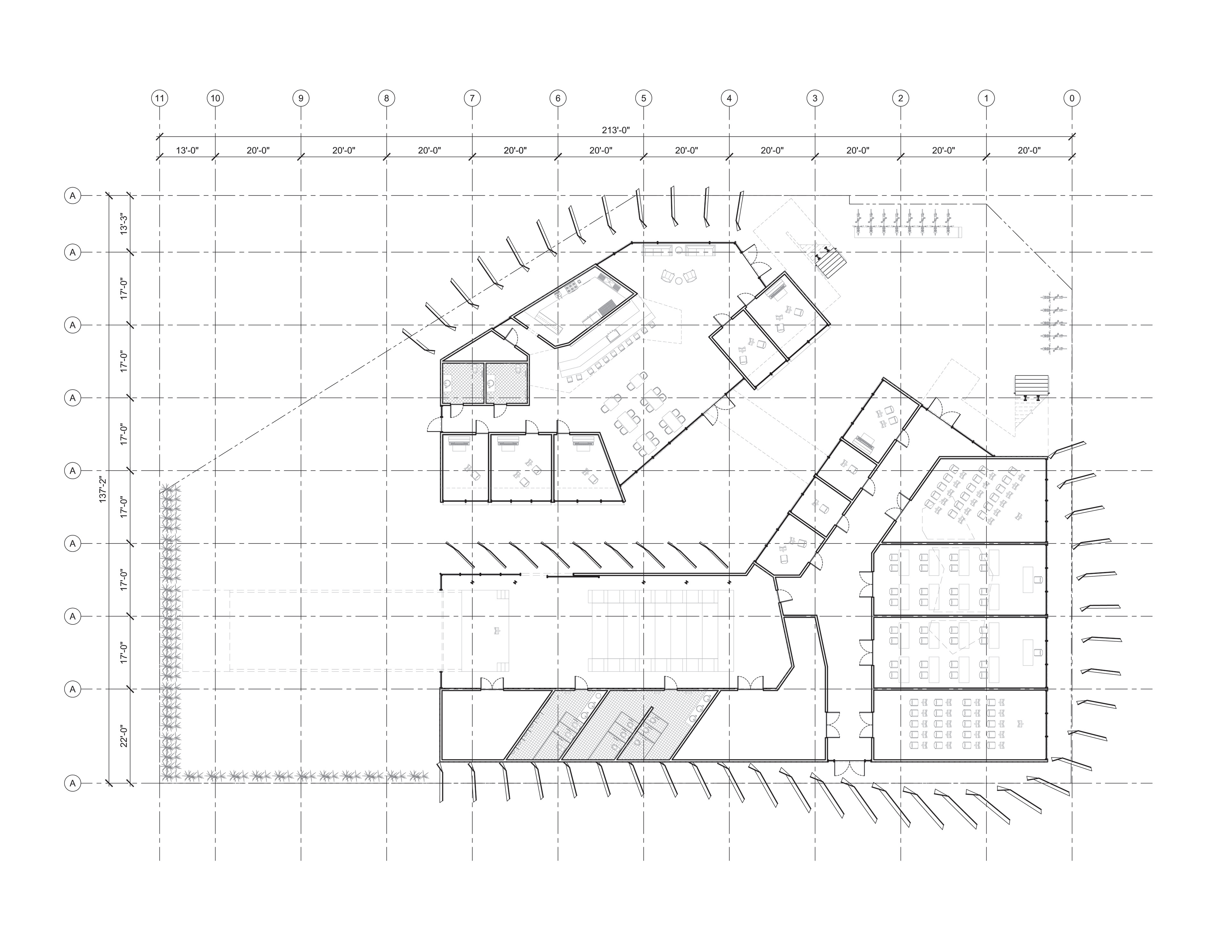
Community Music Center
↑
Back to Top